Lead Dust Sampling Template . lead wipes sampling guide for lead sampling using wipes objective • to capture and quantify lead levels from settable. sampling plans typically include a variety of sampling locations, including collection of soil samples from near building locations. Environmental protection agency | us epa residential sampling for lead: lead dust wipe sampling. Provides guidance for collection of. Single or composite samples can be taken; dust wipe sampling for lead surface wipe samples for settled dust shall be collected from floors (both carpeted and. residential sampling for lead: Provides guidance for collection of. Protocols for dust and soil sampling, final report. 12 x 12 (30cm x 30cm) templates (100 ea.) disposable templates for lead dust wipe and carpet dust vacuum sampling. Protocols for dust and soil sampling, final report.
from present5.com
residential sampling for lead: Protocols for dust and soil sampling, final report. Provides guidance for collection of. Single or composite samples can be taken; residential sampling for lead: Environmental protection agency | us epa lead wipes sampling guide for lead sampling using wipes objective • to capture and quantify lead levels from settable. Provides guidance for collection of. sampling plans typically include a variety of sampling locations, including collection of soil samples from near building locations. Protocols for dust and soil sampling, final report.
1 1 Chapter 1 Introduction Lead Dust Sampling
Lead Dust Sampling Template Environmental protection agency | us epa lead dust wipe sampling. Protocols for dust and soil sampling, final report. 12 x 12 (30cm x 30cm) templates (100 ea.) disposable templates for lead dust wipe and carpet dust vacuum sampling. Environmental protection agency | us epa Protocols for dust and soil sampling, final report. sampling plans typically include a variety of sampling locations, including collection of soil samples from near building locations. residential sampling for lead: Provides guidance for collection of. Provides guidance for collection of. Single or composite samples can be taken; lead wipes sampling guide for lead sampling using wipes objective • to capture and quantify lead levels from settable. dust wipe sampling for lead surface wipe samples for settled dust shall be collected from floors (both carpeted and. residential sampling for lead:
From www.slideserve.com
PPT Chapter 1 Introduction PowerPoint Presentation, free download Lead Dust Sampling Template lead wipes sampling guide for lead sampling using wipes objective • to capture and quantify lead levels from settable. Single or composite samples can be taken; dust wipe sampling for lead surface wipe samples for settled dust shall be collected from floors (both carpeted and. Protocols for dust and soil sampling, final report. sampling plans typically include. Lead Dust Sampling Template.
From www.lcslaboratory.com
Lead Air Sampling Manual. Highflow sampling procedure for residential Lead Dust Sampling Template Single or composite samples can be taken; Provides guidance for collection of. residential sampling for lead: sampling plans typically include a variety of sampling locations, including collection of soil samples from near building locations. dust wipe sampling for lead surface wipe samples for settled dust shall be collected from floors (both carpeted and. 12 x 12. Lead Dust Sampling Template.
From www.kairosafe.it
Sampling template KAIROSafe Lead Dust Sampling Template Protocols for dust and soil sampling, final report. Protocols for dust and soil sampling, final report. dust wipe sampling for lead surface wipe samples for settled dust shall be collected from floors (both carpeted and. residential sampling for lead: Provides guidance for collection of. lead dust wipe sampling. 12 x 12 (30cm x 30cm) templates (100. Lead Dust Sampling Template.
From www.slideserve.com
PPT HUD’s Lead Safe Housing Rule (LSHR) 24 CFR Part 35, subparts BR Lead Dust Sampling Template Provides guidance for collection of. Environmental protection agency | us epa residential sampling for lead: Protocols for dust and soil sampling, final report. Provides guidance for collection of. Protocols for dust and soil sampling, final report. 12 x 12 (30cm x 30cm) templates (100 ea.) disposable templates for lead dust wipe and carpet dust vacuum sampling. sampling. Lead Dust Sampling Template.
From www.coleparmer.de
Environmental Express® GhostWipe® Dust Sampling Wipes, Standards, and Lead Dust Sampling Template Environmental protection agency | us epa residential sampling for lead: Single or composite samples can be taken; lead wipes sampling guide for lead sampling using wipes objective • to capture and quantify lead levels from settable. Protocols for dust and soil sampling, final report. sampling plans typically include a variety of sampling locations, including collection of soil. Lead Dust Sampling Template.
From www.templateroller.com
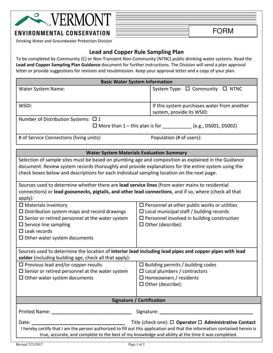
Vermont Lead and Copper Rule Sampling Plan Form Fill Out, Sign Online Lead Dust Sampling Template Protocols for dust and soil sampling, final report. residential sampling for lead: lead dust wipe sampling. dust wipe sampling for lead surface wipe samples for settled dust shall be collected from floors (both carpeted and. Environmental protection agency | us epa 12 x 12 (30cm x 30cm) templates (100 ea.) disposable templates for lead dust wipe. Lead Dust Sampling Template.
From slidetodoc.com
1 1 Chapter 1 Introduction Lead Dust Sampling Lead Dust Sampling Template dust wipe sampling for lead surface wipe samples for settled dust shall be collected from floors (both carpeted and. Protocols for dust and soil sampling, final report. Single or composite samples can be taken; Protocols for dust and soil sampling, final report. residential sampling for lead: Provides guidance for collection of. 12 x 12 (30cm x 30cm). Lead Dust Sampling Template.
From phaseassociate.com
Lead Wipe Sampling In Boston, MA Phase Associates Lead Dust Sampling Template residential sampling for lead: Provides guidance for collection of. residential sampling for lead: Protocols for dust and soil sampling, final report. sampling plans typically include a variety of sampling locations, including collection of soil samples from near building locations. Provides guidance for collection of. Single or composite samples can be taken; Environmental protection agency | us epa. Lead Dust Sampling Template.
From www.pdffiller.com
Fillable Online maine Lead Dust Sampling Form 2009 fillin.doc Fax Lead Dust Sampling Template 12 x 12 (30cm x 30cm) templates (100 ea.) disposable templates for lead dust wipe and carpet dust vacuum sampling. residential sampling for lead: Provides guidance for collection of. lead wipes sampling guide for lead sampling using wipes objective • to capture and quantify lead levels from settable. Protocols for dust and soil sampling, final report. Environmental. Lead Dust Sampling Template.
From www.researchgate.net
(PDF) Field Evaluation and Comparison of Five Methods of Sampling Lead Lead Dust Sampling Template sampling plans typically include a variety of sampling locations, including collection of soil samples from near building locations. Single or composite samples can be taken; Environmental protection agency | us epa dust wipe sampling for lead surface wipe samples for settled dust shall be collected from floors (both carpeted and. residential sampling for lead: Protocols for dust. Lead Dust Sampling Template.
From www.munfordwater.com
Lead & Copper Sampling Plan Lead Dust Sampling Template sampling plans typically include a variety of sampling locations, including collection of soil samples from near building locations. lead wipes sampling guide for lead sampling using wipes objective • to capture and quantify lead levels from settable. Single or composite samples can be taken; Provides guidance for collection of. residential sampling for lead: lead dust wipe. Lead Dust Sampling Template.
From present5.com
1 1 Chapter 1 Introduction Lead Dust Sampling Lead Dust Sampling Template lead wipes sampling guide for lead sampling using wipes objective • to capture and quantify lead levels from settable. lead dust wipe sampling. residential sampling for lead: Environmental protection agency | us epa dust wipe sampling for lead surface wipe samples for settled dust shall be collected from floors (both carpeted and. Provides guidance for collection. Lead Dust Sampling Template.
From www.youtube.com
Brief Review of the Lead and Copper Sampling Plan YouTube Lead Dust Sampling Template 12 x 12 (30cm x 30cm) templates (100 ea.) disposable templates for lead dust wipe and carpet dust vacuum sampling. lead wipes sampling guide for lead sampling using wipes objective • to capture and quantify lead levels from settable. Protocols for dust and soil sampling, final report. Single or composite samples can be taken; Environmental protection agency |. Lead Dust Sampling Template.
From www.lcslaboratory.com
Lead Air Sampling Manual. Highflow sampling procedure for residential Lead Dust Sampling Template Provides guidance for collection of. lead dust wipe sampling. sampling plans typically include a variety of sampling locations, including collection of soil samples from near building locations. dust wipe sampling for lead surface wipe samples for settled dust shall be collected from floors (both carpeted and. Environmental protection agency | us epa 12 x 12 (30cm. Lead Dust Sampling Template.
From slidetodoc.com
3 1 Chapter 3 Lead Dust Wipe Sampling Lead Dust Sampling Template Protocols for dust and soil sampling, final report. Environmental protection agency | us epa 12 x 12 (30cm x 30cm) templates (100 ea.) disposable templates for lead dust wipe and carpet dust vacuum sampling. Provides guidance for collection of. lead wipes sampling guide for lead sampling using wipes objective • to capture and quantify lead levels from settable.. Lead Dust Sampling Template.
From present5.com
1 1 Chapter 1 Introduction Lead Dust Sampling Lead Dust Sampling Template Environmental protection agency | us epa residential sampling for lead: residential sampling for lead: Provides guidance for collection of. lead dust wipe sampling. dust wipe sampling for lead surface wipe samples for settled dust shall be collected from floors (both carpeted and. Provides guidance for collection of. 12 x 12 (30cm x 30cm) templates (100. Lead Dust Sampling Template.
From www.youtube.com
Learn how to conduct personal airborne lead dust sampling at your Lead Dust Sampling Template 12 x 12 (30cm x 30cm) templates (100 ea.) disposable templates for lead dust wipe and carpet dust vacuum sampling. Provides guidance for collection of. Protocols for dust and soil sampling, final report. residential sampling for lead: Protocols for dust and soil sampling, final report. lead dust wipe sampling. Environmental protection agency | us epa residential. Lead Dust Sampling Template.
From dxoljqrwj.blob.core.windows.net
Lead Dust Everywhere at Cara Eaton blog Lead Dust Sampling Template lead dust wipe sampling. residential sampling for lead: sampling plans typically include a variety of sampling locations, including collection of soil samples from near building locations. lead wipes sampling guide for lead sampling using wipes objective • to capture and quantify lead levels from settable. Single or composite samples can be taken; residential sampling for. Lead Dust Sampling Template.